Meldia Residential 北千住 501号室 足立区千住河原町[マンション]

Meldia Residential 北千住 501号室 足立区千住河原町[マンション]

マンション[足立区千住河原町]

ハウスなび 北千住店 北千住東口店 綾瀬店「足立区周辺の賃貸物件検索サイト」

会員の方

閉じる

物件詳細

Meldia Residential 北千住 501号室 足立区千住河原町[マンション]

Meldia Residential 北千住 501号室 足立区千住河原町[マンション] の物件詳細ページです。

物件種別: マンション

お問い合わせ番号:k070656

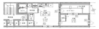
間取り(面積)

1LDK

( 35.7㎡ )

賃料(管理費等)

13.7万円

( 5000円 )

交通: 東京メトロ日比谷線 北千住駅 徒歩14分

敷金/礼金: 1ヶ月 / -

保証金/敷引/償却金: - / - / -

所在地: 足立区千住河原町

築年月: 2024年3月

ポイント

★オートロック付物件★来訪者の顔が見えるTVモニター付きインターホン★ネット使用量無料★経済的な都市ガス物件★いつでも洗濯物が乾く浴室乾燥機付き★

問い合わせ(無料)

TEL: 03-5284-6900

お問い合わせ番号: k070656

QRコード

資料請求などはこちら

問い合わせ(無料)

TEL: 03-5284-6900

お問い合わせ番号: k070656

スタッフからのコメント

★オートロック付物件★来訪者の顔が見えるTVモニター付きインターホン★ネット使用量無料★経済的な都市ガス物件★いつでも洗濯物が乾く浴室乾燥機付き★

セールスポイント

特徴 防犯カメラ,駅まで平坦,閑静な住宅街,平坦地,最上階,2F以上,オートロック,ディンプルキー,角住戸,全室2面採光,眺望良好,通風良好,保証人(不要),カード決済可(入居時費用)
設備 宅配BOX,システムキッチン,2口コンロ,IHクッキングヒーター,バス・トイレ別,バス有,浴室乾燥,脱衣所,シャワー,トイレ有,温水洗浄便座,洗面台,洗面所独立,洗面所にドア,洗面化粧台,シャワー付洗面台,エアコン,エアコン2台,エアコン全室,照明付き,高速ネット対応,光ファイバー,ネット使用料不要,インターホン,TVインターホン,給湯,ガス給湯,24時間換気システム,フローリング,全居室フローリング,室内洗濯機置場,洗濯機置場,クローゼット,シューズボックス,全居室収納,収納有,収納2ヶ所,ガス(都市ガス),下水(公共下水),水道(公営),電気
光ファイバー エレベーター
天井高 空調 全室
駐車場 駐車場:要問い合わせ
周辺施設 コンビニ:セブンイレブン 千住仲町店 237m
郵便局:足立仲町郵便局 426m
ショッピング施設:ポンテポルタ 千住大橋 491m
ドラッグストア:マツモトキヨシ ポンテポルタ千住店 499m
スーパー:ライフ ポンテポルタ千住店 585m
警察署・交番:千住警察署 630m

物件概要

物件名 Meldia Residential 北千住 501号室
物件所在地 東京都足立区千住河原町27-8 周辺地図
交通機関 東京メトロ日比谷線 北千住駅 徒歩14分
京成本線 千住大橋駅 徒歩5分
常磐線 南千住駅 徒歩17分
間取り詳細 洋室(5.4畳) LDK(9.3畳)
専有面積 35.7㎡
所在階/地上階数 5 / 5 部屋向き 北東
建物構造 鉄筋コンクリート 築年月 2024年3月
総戸数 15
賃料 13.7万円 管理費等 5000円
敷金 1ヶ月 礼金 -
保証金 - 更新料 新賃料 1ヶ月
積増し敷金 - 積増し理由
その他一時金 退去時クリーニング費用:55,000円 退去時エアコンクリーニング費用:13,200円 その他費用 短期解約違約金:1年未満:家賃2ヶ月、1年以上2年未満で解約
する場合1ヶ月
損害保険 有 料金:18000円 損保期間:24ヶ月 
契約形態 普通借家契約 期間 契約期間:2年
保証会社 必須 (日本セーフティー) 初回保証料:月額総賃料の50% 1年毎:13,200円 毎月:700円 保証人代行 必須
法人契約
現況 入居時期 相談 
入居条件 ペット(不可),事務所(不可),楽器等の使用(不可),性別(不問),単身(可),二人(可),法人(可),ルームシェア(不可)
備考 ★是非一度ご来店下さい♪★LINEでのやり取りも可能★わかりやすく納得いくまでお受付いたします★当店オンライン内見も可能です!
IT重説

その他

取引態様 仲介先物 自社管理番号 k070656
情報更新日 2026年4月10日 次回更新予定日 2026年4月24日
不動産会社コード 2109277 物件管理コード 1117928590050000338601
  • ※間取りの「S」はサービスルーム(納戸)です。
  • ※QRコードは(株)デンソーウェーブの登録商標です。

資料請求などはこちら

問い合わせ(無料)

TEL: 03-5284-6900

お問い合わせ番号: k070656

お問い合わせ先:株式会社ハウスなび 北千住店

所在地 : 東京都足立区千住2丁目22マスミビル2F
TEL : 03-5284-6900
免許番号 : 国土交通大臣(2)第9031号
加盟団体 : 公益社団法人東京都宅地建物取引業協会

この部屋を見学予約

ホームへ戻る

Copyright (C)housenavi All rights reserved.