リヴシティ堀切菖蒲園 葛飾区小菅[マンション]

リヴシティ堀切菖蒲園 葛飾区小菅[マンション]

マンション[葛飾区小菅]

ハウスなび 北千住店 北千住東口店 綾瀬店「足立区周辺の賃貸物件検索サイト」

会員の方

閉じる

棟詳細

リヴシティ堀切菖蒲園 葛飾区小菅 マンション

リヴシティ堀切菖蒲園 葛飾区小菅[マンション]の棟詳細ページです。

物件種別:マンション

間取り(面積)

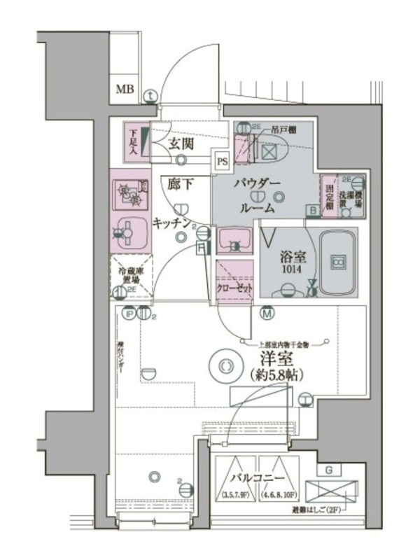
1K

( 20.3㎡)

賃料

7.05万円

交通: 京成本線 堀切菖蒲園駅 徒歩6分

所在地: 葛飾区小菅

築年月: 2017年6月

管理費等の月次金がかかることがあります。詳細は各部屋のページでご確認ください。

ポイント

★ペット可(小型犬可/猫可、礼金1ヶ月追加)★鉄筋コンクリート造マンション★インターネット無料★脱衣所★浴室乾燥機完備★都市ガス★


  • ※代表的なお部屋の写真と物件情報になります。タイプによっては一部仕様・眺望等が異なる場合があります。
  • ※お部屋により現況と異なる場合は現況を優先いたします。



所在地 東京都葛飾区小菅2丁目 周辺地図
交通 京成本線 堀切菖蒲園駅 徒歩6分
京成本線 お花茶屋駅 徒歩18分
東京メトロ千代田線 綾瀬駅 徒歩20分
賃料 7.05万円
築年月 2017年6月 (築8年)
建物構造 鉄筋コンクリート 登録空きフロア計 40.6㎡ (12.28坪)
総戸数 28戸 規模 10階建/ -



所在階 賃料 管理費/共益費 敷金/礼金 間取り 専有面積 詳細

2階 7.05万円

-

/ 10000円

-

/ 1ヶ月

1K

20.3㎡

(6.14坪)

リヴシティ堀切菖蒲園 の詳細ページ

2階 7.05万円

-

/ 10000円

-

/ 1ヶ月

1K

20.3㎡

(6.14坪)

リヴシティ堀切菖蒲園 の詳細ページ


  • ※間取りの「S」はサービスルーム(納戸)です。

ホームへ戻る

Copyright (C)housenavi All rights reserved.