グラシアリノ町屋 荒川区東尾久[マンション]

グラシアリノ町屋 荒川区東尾久[マンション]

マンション[荒川区東尾久]

ハウスなび 北千住店 北千住東口店 綾瀬店「足立区周辺の賃貸物件検索サイト」

会員の方

閉じる

物件詳細

グラシアリノ町屋 荒川区東尾久[マンション]

 

グラシアリノ町屋 荒川区東尾久[マンション] の物件詳細ページです。

物件種別: マンション

お問い合わせ番号:k085730

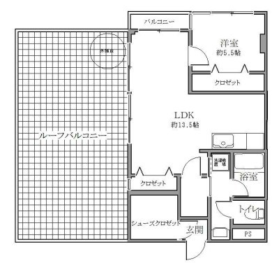
間取り(面積)

1LDK

( 49.5㎡ )

賃料(管理費等)

14.2万円

( 8000円 )

交通: 京成本線 町屋駅 徒歩10分

敷金/礼金: 1ヶ月 / -

保証金/敷引/償却金: - / - / -

所在地: 荒川区東尾久

築年月: 1989年6月

ポイント

★ルーフバルコニー★エレベーター付き★宅配ボックス★追い焚き付きバス★

問い合わせ(無料)

TEL: 03-5284-6900

お問い合わせ番号: k085730

QRコード

資料請求などはこちら

問い合わせ(無料)

TEL: 03-5284-6900

お問い合わせ番号: k085730

スタッフからのコメント

★ルーフバルコニー★エレベーター付き★宅配ボックス★追い焚き付きバス★

セールスポイント

特徴 駅まで平坦,駅前,平坦地,最上階,2F以上,オートロック,角住戸,陽当たり良好,通風良好,保証人(不要),カード決済可(入居時費用)
設備 エレベーター,宅配BOX,ガスコンロ設置済,2口コンロ,ガスキッチン,バス・トイレ別,バス有,追い焚き風呂,脱衣所,シャワー,トイレ有,温水洗浄便座,洗面台,洗面所独立,洗面所にドア,洗面化粧台,エアコン,電話回線,高速ネット対応,光ファイバー,インターホン,TVインターホン,給湯,ガス給湯,フローリング,全居室フローリング,室内洗濯機置場,洗濯機置場,クローゼット,シューズボックス,玄関収納,全居室収納,収納有,収納2ヶ所,収納3ヶ所,ガス(都市ガス),下水(公共下水),水道(公営),電気
光ファイバー エレベーター 1基
天井高 空調 1基
部屋外設備 ベランダ,バルコニー,ルーフバルコニー
駐車場 駐車場:無 駐輪場:有
周辺施設 総合病院:田端中央診療所 1209m
ショッピング施設:ポンテポルタ 千住大橋 3189m
ホームセンター:Olympic(オリンピック) 三ノ輪店 2628m
スーパー:おっ母さん 北千住店 3213m
コンビニ:ミニストップ 千住仲町店 3420m
警察署・交番:千住警察署 3519m

物件概要

物件名 グラシアリノ町屋
物件所在地 東京都荒川区東尾久6丁目 周辺地図
交通機関 京成本線 町屋駅 徒歩10分
都電荒川線 東尾久三丁目駅 徒歩2分
日暮里・舎人ライナー 熊野前駅 徒歩9分
間取り詳細 LDK(13.5畳) 洋室(5.5畳)
専有面積 49.5㎡
所在階/地上階数 5 / 5 部屋向き
建物構造 鉄筋コンクリート 築年月 1989年6月
賃料 14.2万円 管理費等 8000円
敷金 1ヶ月 礼金 -
保証金 - 更新料 新賃料 1ヶ月
積増し敷金 - 積増し理由
その他一時金 その他費用 短期解約違約金 / 1年未満で賃料等1ヶ月分
その他月次費用 駆付けサポート:1,100円 鍵交換費用:24,200円
損害保険 有 料金:20000円 損保期間:24ヶ月 
契約形態 普通借家契約 期間 契約期間:2年
保証会社 必須 初回:総賃料の50%~ 月額:1300~1560円 保証人代行 必須
法人契約
現況 入居時期 期日指定 2026年5月下旬
入居条件 ペット(不可),事務所(不可),楽器等の使用(不可),性別(不問),子供(可),単身(可),二人(可),法人(可)
備考 初期費用全額分割プランあり(契約時支払金0円※但し審査あり)
IT重説

その他

取引態様 仲介先物 自社管理番号 k085730
情報更新日 2026年4月27日 次回更新予定日 2026年5月11日
不動産会社コード 2109277 物件管理コード 1117928590050000394447
  • ※間取りの「S」はサービスルーム(納戸)です。
  • ※QRコードは(株)デンソーウェーブの登録商標です。

資料請求などはこちら

問い合わせ(無料)

TEL: 03-5284-6900

お問い合わせ番号: k085730

お問い合わせ先:株式会社ハウスなび 北千住店

所在地 : 東京都足立区千住2丁目22マスミビル2F
TEL : 03-5284-6900
免許番号 : 国土交通大臣(2)第9031号
加盟団体 : 公益社団法人東京都宅地建物取引業協会

この部屋を見学予約

ホームへ戻る

Copyright (C)housenavi All rights reserved.