GENOVIA六町 足立区西加平[マンション]

GENOVIA六町 足立区西加平[マンション]

マンション[足立区西加平]

ハウスなび 北千住店 北千住東口店 綾瀬店「足立区周辺の賃貸物件検索サイト」

会員の方

閉じる

物件詳細

GENOVIA六町 足立区西加平[マンション]

GENOVIA六町 足立区西加平[マンション] の物件詳細ページです。

物件種別: マンション

お問い合わせ番号:ksh-0000072543

間取り(面積)

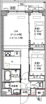
2LDK

( 44.43㎡ )

賃料(管理費等)

15.3万円

( 15000円 )

交通: つくばエクスプレス 六町駅 徒歩9分

敷金/礼金: - / -

保証金/敷引/償却金: - / - / -

所在地: 足立区西加平

築年月: 完成予定
2026年3月

ポイント

☆「六町」駅 徒歩9分の新築物件☆ペット飼育可(大型犬・猫・多頭飼い可)☆インターネットWi-Fi無料☆

問い合わせ(無料)

TEL: 03-5244-6121

お問い合わせ番号: ksh-0000072543

QRコード

資料請求などはこちら

問い合わせ(無料)

TEL: 03-5244-6121

お問い合わせ番号: ksh-0000072543

スタッフからのコメント

☆「六町」駅 徒歩9分の新築物件☆ペット飼育可(大型犬・猫・多頭飼い可)☆インターネットWi-Fi無料☆

セールスポイント

特徴 防犯カメラ,駅まで平坦,閑静な住宅街,平坦地,オートロック,モニタ付オートロック,ダブルロック,ディンプルキー,24時間緊急通報システム,通風良好,保証人(不要)
設備 エレベーター,敷地内ゴミ置き場,宅配BOX,システムキッチン,カウンターキッチン,ガスコンロ設置済,2口コンロ,3口以上コンロ,ガスキッチン,バス・トイレ別,バス有,浴室乾燥,脱衣所,シャワー,トイレ有,温水洗浄便座,洗面台,洗面所独立,洗面所にドア,洗面化粧台,シャワー付洗面台,エアコン,エアコン全室,照明付き,全室照明付き,BS,CS,マルチメディアコンセント,ネット専用回線,ネット使用料不要,インターホン,TVインターホン,給湯,ガス給湯,24時間換気システム,冷房,フローリング,全居室フローリング,室内洗濯機置場,洗濯機置場,クローゼット,シューズボックス,玄関収納,全居室収納,収納有,収納2ヶ所,収納3ヶ所,人感照明センサー,ガス(都市ガス),下水(公共下水),水道(公営),電気
光ファイバー エレベーター 1基
天井高 空調 全室
部屋外設備 バルコニー
周辺施設 コンビニ:ローソン 足立加平インター店 326m
ドラッグストア:ドラッグセイムス 足立青井店 377m
郵便局:足立西加平郵便局 512m
警察署・交番:一ツ家交番 635m
スーパー:ライフ 六町駅前店 712m
総合病院:医療法人綾瀬病院 1506m

物件概要

物件名 GENOVIA六町
物件所在地 東京都足立区西加平2丁目 周辺地図
交通機関 つくばエクスプレス 六町駅 徒歩9分
東京メトロ千代田線 北綾瀬駅 徒歩17分
東武スカイツリーライン 五反野駅 徒歩27分
間取り詳細 洋室(4.25畳) 洋室(3.3畳) LDK(12.04畳)
専有面積 44.43㎡
所在階/地上階数 1 / 5 部屋向き
建物構造 鉄筋コンクリート 築年月 完成予定
2026年3月
総戸数 38
賃料 15.3万円 管理費等 15000円
保証金 - 更新料 新賃料 1ヶ月
積増し敷金 - 積増し理由
その他一時金 契約事務手数料:11,000円  消臭抗菌サービス:11,000円 室内清掃費用:60,500円 その他費用 外国籍サポートプラン10,800円 短期解約違約金:1年未満の解約で総賃料1ヵ月分
損害保険 有 損保名称:火災保険 
契約形態 普通借家契約 期間 契約期間:2年
保証会社 必須 ルームバンクインシュア一番手「RBI」初回保証料:50%(ペット飼育時100%) 外国籍:100%+外国籍サポート年間10,800円 (※審査により変更有・要確認) 外国籍家賃:クレカQR決済可(既存 保証人代行 必須
法人契約
現況 入居時期 即時 
入居条件 ペット(可),事務所(不可),楽器等の使用(不可),性別(不問),子供(可),単身(可),二人(可),高齢者(相談),法人(可),ルームシェア(可),友人同士(可)
備考 初期費用全額分割プランあり(契約時支払い0円※但し審査あり)★お引渡しまでの期間【お申込みより2週間以内や退去予定物件、期日指定など】★初期費用の支払い★保証人不要★ご不明点等詳しくお話しできればと思いますのでお気軽にお電話にてご相談下さい★わかりやすく納得いくまでお受付いたします★
IT重説

その他

取引態様 仲介先物 自社管理番号 ksh-0000072543
情報更新日 2026年3月2日 次回更新予定日 2026年3月16日
不動産会社コード 2111156 物件管理コード 1117928590050000388554
  • ※間取りの「S」はサービスルーム(納戸)です。
  • ※QRコードは(株)デンソーウェーブの登録商標です。

資料請求などはこちら

問い合わせ(無料)

TEL: 03-5244-6121

お問い合わせ番号: ksh-0000072543

お問い合わせ先:株式会社ハウスなび 北千住東口店

所在地 : 東京都足立区千住旭町4-15
TEL : 03-5244-6121
免許番号 : 国土交通大臣(2)第9031号
加盟団体 : 公益社団法人東京都宅地建物取引業協会

この部屋を見学予約

ホームへ戻る

Copyright (C)housenavi All rights reserved.